Интернет-магазин представительского класса
Каталог
По всему сайту
По каталогу
Каталог
Передвижные мастерские
ПАРМ авторемонтная мастерская
ПАРМ с КМУ
Передвижные мастерские специального назначения
Грузопассажирская спецтехника
Вахтовые автобусы серии "Берлога"
Транспортно-бытовые машины ТБМ
ГПА грузопассажирская спецтехника
Маслораздаточные станции
Бортовые автомобили
Седельные тягачи
Специальная техника
Транспортные эвакуаторы
Машина технической помощи МТП
Специализированные транспортные средства
Спецтехника для перевозки взрывчатых веществ
Передвижные столовые
Аэродромная спецтехника
Аэродромная ассенизационная машина
Трап
Аэродромный заправщик питьевой воды
АПК Автомобиль с платформой кузовной
Подъемно-транспортная машина Автолифт
Подъемно-транспортная машина Амбулифт
Самоходная площадка обслуживания СПО
Командно-штабные машины и автомобили для МЧС
Самоходные подъемники ТСПП-ГИРД
Автодома
Передвижные лаборатории
Изотермические фургоны
Вагон-дома
Коммунальная техника
Емкостная спецтехника
АЦН Автоцистерны нефтевозы
АТЗ Автотопливозаправщики
АЦПТ Автоцистерны для воды
МВ Автоцистерны вакуумные
АКН Автоцистерны нефтепромысловые
АЦВ Автоцистерны для технической воды
Промысловая спецтехника
ППУ Передвижные паровые установки
АДПМ Агрегат для депарафинизации скважин
ЦА Цементированный агрегат
УМП Универсальный моторный подогреватель
Агрегат кислотной обработки скважин
КМУ Крано-манипуляторные установки
Каталог
В наличии
Дорожно-уборочная техника
Маслостанции и маслораздаточные комплексы с КМУ
Бортовые автомобили с КМУ
Седельные тягачи с КМУ
Медицинские и санитарные машины
О компании
О компании
Новости
Наша история
Наши разработки
Реквизиты
Вакансии
Контакты
Переоборудование
Технологии
В наличии
География поставок
+7 (800) 200-24-63
+7 (800) 200-24-63Отдел продаж
+7 (801) 200-24-63Отдел прямых продаж
Заказать звонок
Задать вопрос
Войти
  • Корзина0
g-s@gird.ru
456313, Челябинская обл., г. Миасс, ул. Севастопольская, 1а
Каталог спецтехники
  • Передвижные мастерские
    • ПАРМ авторемонтная мастерская
    • ПАРМ с КМУ
    • Передвижные мастерские специального назначения
  • Грузопассажирская спецтехника
    • Вахтовые автобусы серии "Берлога"
    • Транспортно-бытовые машины ТБМ
    • ГПА грузопассажирская спецтехника
  • Маслораздаточные станции
  • Бортовые автомобили
  • Седельные тягачи
  • Специальная техника
    • Транспортные эвакуаторы
    • Машина технической помощи МТП
    • Специализированные транспортные средства
    • Спецтехника для перевозки взрывчатых веществ
    • Передвижные столовые
  • Аэродромная спецтехника
    • Аэродромная ассенизационная машина
    • Трап
    • Аэродромный заправщик питьевой воды
    • АПК Автомобиль с платформой кузовной
    • Подъемно-транспортная машина Автолифт
    • Подъемно-транспортная машина Амбулифт
    • Самоходная площадка обслуживания СПО
  • Командно-штабные машины и автомобили для МЧС
  • Самоходные подъемники ТСПП-ГИРД
  • Автодома
  • Передвижные лаборатории
  • Изотермические фургоны
  • Вагон-дома
  • Коммунальная техника
  • Емкостная спецтехника
    • АЦН Автоцистерны нефтевозы
    • АТЗ Автотопливозаправщики
    • АЦПТ Автоцистерны для воды
    • МВ Автоцистерны вакуумные
    • АКН Автоцистерны нефтепромысловые
    • АЦВ Автоцистерны для технической воды
  • Промысловая спецтехника
    • ППУ Передвижные паровые установки
    • АДПМ Агрегат для депарафинизации скважин
    • ЦА Цементированный агрегат
    • УМП Универсальный моторный подогреватель
    • Агрегат кислотной обработки скважин
  • КМУ Крано-манипуляторные установки
  • Каталог
  • В наличии
  • Дорожно-уборочная техника
  • Маслостанции и маслораздаточные комплексы с КМУ
  • Бортовые автомобили с КМУ
  • Седельные тягачи с КМУ
  • Медицинские и санитарные машины
В каталог

Подкатегории

О компании
Переоборудование
Технологии
В наличии
География поставок
+  ЕЩЕ
    Ru En
    Каталог
    По всему сайту
    По каталогу
      • Каталог
      • Наши разработки
      • Наша история
      • Реквизиты
      • Вакансии
      • Сертификаты соответствия
      • Контакты
      Телефон
      +7 (800) 200-24-63
      +7 (800) 200-24-63Отдел продаж
      +7 (801) 200-24-63Отдел прямых продаж
      Бесплатный звонок из любого региона России
      E-mail
      Просьба указывать в теме письма, кому оно адресовано.
      g-s@gird.ru
      Адрес
      456313, Челябинская обл., г. Миасс, ул. Севастопольская, 1а
      Ru En
      Каталог
      По всему сайту
      По каталогу
      Каталог
      По всему сайту
      По каталогу
      В каталог
      Каталог спецтехники
      • Передвижные мастерские
        • ПАРМ авторемонтная мастерская
        • ПАРМ с КМУ
        • Передвижные мастерские специального назначения
      • Грузопассажирская спецтехника
        • Вахтовые автобусы серии "Берлога"
        • Транспортно-бытовые машины ТБМ
        • ГПА грузопассажирская спецтехника
      • Маслораздаточные станции
      • Бортовые автомобили
      • Седельные тягачи
      • Специальная техника
        • Транспортные эвакуаторы
        • Машина технической помощи МТП
        • Специализированные транспортные средства
        • Спецтехника для перевозки взрывчатых веществ
        • Передвижные столовые
      • Аэродромная спецтехника
        • Аэродромная ассенизационная машина
        • Трап
        • Аэродромный заправщик питьевой воды
        • АПК Автомобиль с платформой кузовной
        • Подъемно-транспортная машина Автолифт
        • Подъемно-транспортная машина Амбулифт
        • Самоходная площадка обслуживания СПО
      • Командно-штабные машины и автомобили для МЧС
      • Самоходные подъемники ТСПП-ГИРД
      • Автодома
      • Передвижные лаборатории
      • Изотермические фургоны
      • Вагон-дома
      • Коммунальная техника
      • Емкостная спецтехника
        • АЦН Автоцистерны нефтевозы
        • АТЗ Автотопливозаправщики
        • АЦПТ Автоцистерны для воды
        • МВ Автоцистерны вакуумные
        • АКН Автоцистерны нефтепромысловые
        • АЦВ Автоцистерны для технической воды
      • Промысловая спецтехника
        • ППУ Передвижные паровые установки
        • АДПМ Агрегат для депарафинизации скважин
        • ЦА Цементированный агрегат
        • УМП Универсальный моторный подогреватель
        • Агрегат кислотной обработки скважин
      • КМУ Крано-манипуляторные установки
      • Каталог
      • В наличии
      • Дорожно-уборочная техника
      • Маслостанции и маслораздаточные комплексы с КМУ
      • Бортовые автомобили с КМУ
      • Седельные тягачи с КМУ
      • Медицинские и санитарные машины
      В каталог

      Подкатегории

      О компании
      Переоборудование
      Технологии
      В наличии
      География поставок
      +  ЕЩЕ
        • Каталог
        • Наши разработки
        • Наша история
        • Реквизиты
        • Вакансии
        • Сертификаты соответствия
        • Контакты
        Телефон
        +7 (800) 200-24-63
        +7 (800) 200-24-63Отдел продаж
        +7 (801) 200-24-63Отдел прямых продаж
        Бесплатный звонок из любого региона России
        E-mail
        Просьба указывать в теме письма, кому оно адресовано.
        g-s@gird.ru
        Адрес
        456313, Челябинская обл., г. Миасс, ул. Севастопольская, 1а
        • Каталог
          • Назад
          • Каталог
          • Передвижные мастерские
            • Назад
            • Передвижные мастерские
            • ПАРМ авторемонтная мастерская
            • ПАРМ с КМУ
            • Передвижные мастерские специального назначения
          • Грузопассажирская спецтехника
            • Назад
            • Грузопассажирская спецтехника
            • Вахтовые автобусы серии "Берлога"
            • Транспортно-бытовые машины ТБМ
            • ГПА грузопассажирская спецтехника
          • Маслораздаточные станции
          • Бортовые автомобили
          • Седельные тягачи
          • Специальная техника
            • Назад
            • Специальная техника
            • Транспортные эвакуаторы
            • Машина технической помощи МТП
            • Специализированные транспортные средства
            • Спецтехника для перевозки взрывчатых веществ
            • Передвижные столовые
          • Аэродромная спецтехника
            • Назад
            • Аэродромная спецтехника
            • Аэродромная ассенизационная машина
            • Трап
            • Аэродромный заправщик питьевой воды
            • АПК Автомобиль с платформой кузовной
            • Подъемно-транспортная машина Автолифт
            • Подъемно-транспортная машина Амбулифт
            • Самоходная площадка обслуживания СПО
          • Командно-штабные машины и автомобили для МЧС
          • Самоходные подъемники ТСПП-ГИРД
          • Автодома
          • Передвижные лаборатории
          • Изотермические фургоны
          • Вагон-дома
          • Коммунальная техника
          • Емкостная спецтехника
            • Назад
            • Емкостная спецтехника
            • АЦН Автоцистерны нефтевозы
            • АТЗ Автотопливозаправщики
            • АЦПТ Автоцистерны для воды
            • МВ Автоцистерны вакуумные
            • АКН Автоцистерны нефтепромысловые
            • АЦВ Автоцистерны для технической воды
          • Промысловая спецтехника
            • Назад
            • Промысловая спецтехника
            • ППУ Передвижные паровые установки
            • АДПМ Агрегат для депарафинизации скважин
            • ЦА Цементированный агрегат
            • УМП Универсальный моторный подогреватель
            • Агрегат кислотной обработки скважин
          • КМУ Крано-манипуляторные установки
          • Каталог
          • В наличии
          • Дорожно-уборочная техника
          • Маслостанции и маслораздаточные комплексы с КМУ
          • Бортовые автомобили с КМУ
          • Седельные тягачи с КМУ
          • Медицинские и санитарные машины
        • О компании
          • Назад
          • О компании
          • О компании
          • Новости
          • Наша история
          • Наши разработки
          • Реквизиты
          • Вакансии
          • Контакты
        • Переоборудование
        • Технологии
        • В наличии
        • География поставок
        • Личный кабинет
        • Корзина0
        • +7 (800) 200-24-63Отдел продаж
          • Назад
          • Телефоны
          • +7 (800) 200-24-63Отдел продаж
          • +7 (801) 200-24-63Отдел прямых продаж
        Контактная информация
        456313, Челябинская обл., г. Миасс, ул. Севастопольская, 1а
        g-s@gird.ru
        Главная
        /
        Передвижные мастерские
        Грузопассажирская спецтехникаМаслораздаточные станцииБортовые автомобилиСедельные тягачиСпециальная техникаКомандно-штабные машины и автомобили для МЧСАэродромная спецтехникаСамоходные подъемники ТСПП-ГИРДАвтодомаПередвижные лабораторииИзотермические фургоныВагон-домаКоммунальная техникаЕмкостная спецтехникаПромысловая спецтехникаКМУ Крано-манипуляторные установкиВ наличииДорожно-уборочная техникаМаслостанции и маслораздаточные комплексы с КМУБортовые автомобили с КМУСедельные тягачи с КМУМедицинские и санитарные машиныКаталог
        /
        ПАРМ с КМУ
        ПАРМ авторемонтная мастерскаяПередвижные мастерские специального назначения
        /ПАРМ Урал 63701К с КМУ Palfinger PK-10000A
        ПАРМ Урал 63701К с КМУ Palfinger PK-10000A 1
        ПАРМ Урал 63701К с КМУ Palfinger PK-10000A 2
        ПАРМ Урал 63701К с КМУ Palfinger PK-10000A 3
        ПАРМ Урал 63701К с КМУ Palfinger PK-10000A 4
        ПАРМ Урал 63701К с КМУ Palfinger PK-10000A 5
        ПАРМ Урал 63701К с КМУ Palfinger PK-10000A 6
        ПАРМ Урал 63701К с КМУ Palfinger PK-10000A 7
        ПАРМ Урал 63701К с КМУ Palfinger PK-10000A 8
        ПАРМ Урал 63701К с КМУ Palfinger PK-10000A 9
        ПАРМ Урал 63701К с КМУ Palfinger PK-10000A 10
        ПАРМ Урал 63701К с КМУ Palfinger PK-10000A 1
        ПАРМ Урал 63701К с КМУ Palfinger PK-10000A 2
        ПАРМ Урал 63701К с КМУ Palfinger PK-10000A 3
        ПАРМ Урал 63701К с КМУ Palfinger PK-10000A 4
        ПАРМ Урал 63701К с КМУ Palfinger PK-10000A 5
        ПАРМ Урал 63701К с КМУ Palfinger PK-10000A 6
        ПАРМ Урал 63701К с КМУ Palfinger PK-10000A 7
        ПАРМ Урал 63701К с КМУ Palfinger PK-10000A 8
        ПАРМ Урал 63701К с КМУ Palfinger PK-10000A 9
        ПАРМ Урал 63701К с КМУ Palfinger PK-10000A 10
        ПАРМ с КМУ

        ПАРМ Урал 63701К с КМУ Palfinger PK-10000A

        Артикул: 6517

        Цена:

        По запросу
        Варианты цен
        По запросу
        Подробности
        Узнать цену
        Наши менеджеры обязательно свяжутся с вами и уточнят условия заказа
        Узнать цену
        Наши менеджеры обязательно свяжутся с вами и уточнят условия заказа
        Нет в наличии
        Печать Скачать PDF
        Поделиться
        • Описание
        • Доставка
        • Оплата
        • Как заказать
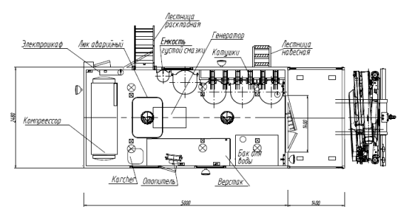
        Комплектация и описание
        Шасси Урал 63701К
        Фургон из 5слойных сэндвич-панелей собственного производства
        Palfinger PK-10000A
        Бортовая платформа
        Электрооборудование
        Генератор синхронный
        Разъем внешнего подвода электроэнергии
        Электрошкаф
        Розетка 380 В
        Розетка сдвоенная 220 В
        Климатическое оборудование
        Отопление от системы ДВС
        Сухой фен Планар 8Д
        Мебель
        Верстак двухтумбовый с выдвижными ящиками с тисками
        Ящики выдвижные под компрессором
        Навесная полка с дверцами с замком
        Шкафчик с дверцей
        Дополнительное оборудование
        Вешалка на задней двери
        Бак для воды
        Компрессор
        Горячая мойка
        Фара прожектор в бортовой платформе
        Еврокуб
        Ложементы для крепления бочек
        Комплект принадлежностей шасси Комплект шанцевого инструмента
        Комплект средств электробезопасности

        Доставка нашей спецтехники может осуществляться следующими способами:

        • Самовывоз;
        • Услуга по доставке техники по всей России нашим транспортным отделом;
        • Доставка любой транспортной компании.

        Оплатить спецтехнику нашего производства можно следующими способами

        • Безналичный расчёт
        • Оплата наличными
        • Лизинг

        Чтобы получить подробную консультацию по способам доставки и оплаты нашей спецтехники позвоните по телефону 88002002463, звонок по России бесплатный.

        Оформление заказа в стандартном режиме выглядит следующим образом. Заполняете полностью форму по последовательным этапам: адрес, способ доставки, оплаты, данные о себе. Советуем в комментарии к заказу написать информацию, которая поможет курьеру вас найти. Нажмите кнопку «Оформить заказ».

        Процесс заказа спецтехники
        1
        Запрос на расчет цены по выбранной комплектации спецтехники
        Запрос на расчет цены по выбранной комплектации спецтехники
        2
        Согласование цены
        Согласование цены
        3
        Оформление договора
        Оформление договора
        4
        Предоплата по договору
        Предоплата по договору
        5
        Изготовление
        Изготовление
        6
        Уведомление о готовности
        Уведомление о готовности
        7
        Доплата по договору
        Доплата по договору
        8
        Выдача готовой спецтехники или услуга по доставке
        Выдача готовой спецтехники или услуга по доставке

        ПАРМ Урал 63701К с КМУ Palfinger PK-10000A от производителя

        Ознакомьтесь с характеристиками, размерами, подробным описанием, характеристиками и фото товаров. Помните, что фотографии на сайте могут отличаться от реального изображения.

        Завод "ГИРД" предлагает купить ПАРМ Урал 63701К с КМУ Palfinger PK-10000A от производителя с доставкой по всей России. Подробнее по телефону 8(800)200-24-63

        Товары из категории

        Нужна консультация?

        Наши специалисты ответят на любой интересующий вопрос
        Задать вопрос
        Будьте в курсе наших акций и новостей
        Подписаться

        Контакты

        Телефон
        +7 (800) 200-24-63
        +7 (800) 200-24-63Отдел продаж
        +7 (801) 200-24-63Отдел прямых продаж

        Бесплатный звонок из любого региона России
        E-mail
        Просьба указывать в теме письма, кому оно адресовано.
        g-s@gird.ru
        Адрес
        456313, Челябинская обл., г. Миасс, ул. Севастопольская, 1а

        Информация

        О компании
        Контакты
        Политика об обработке персональных данных
        Положение об обработке и защите персональных данных
        СОУТ ООО «ГИРД-Автофургон»
        СОУТ ООО «Мизатеф»
        СОУТ ООО «ЗСТ ГИРД»
        Технологии
        Наши разработки
        Сертификаты соответствия
        Данные о результатах СОУТ

        Категории

        Специальная техника
        Грузопассажирская спецтехника
        КМУ
        Автодома
        Аэродромная спецтехника
        В наличии

        Отзывы

        Яндекс
        Google
        2ГИС
        Фламп
        Yell.ru
        Zoon.ru
        YouTube
        2026 © Группа предприятий «ГИРД» 1994–2026.

        Настоящий сайт является объектом авторского права, исключительные права на использование которого принадлежат Группе предприятий «ГИРД» (Общество с Ограниченной Ответственностью «ГИРД — Автофургон», Общество с Ограниченной Ответственностью «Мизатеф») Копирование, размножение, распространение, перепечатка (целиком или частично) или иное использование размещенных на сайте текстовых, графических, аудио- и видеоматериалов, а также файлов всех форматов без письменного разрешения автора не допускается. Любое нарушение авторских прав будет преследоваться на основании российского и международного законодательства.

        Разработка и продвижение сайта — flexsites
        Каталог
        По всему сайту
        По каталогу